消防信号闸阀产品说明书
1.产品简介
1.1.概述
消防信号闸阀,是在消防闸阀基础上附加立柱或表盘式信号装置,除了可输出阀门的现场开度外,还可输出远传开度或/和行程开关控制电信号,实现远程有线监控。公司消防信号闸阀按连接方式分为法兰式和沟槽式两种。
1.2.原理功能
消防信号闸阀主要应用在需要远程监控的场合,可以防止阀门被误关闭或误开启,即保持阀门的常开或常关状态;也可即时监控阀门的开度情况。
例如消防喷水系统的供水管路上,当阀门被误关闭到一定开度(此时流量不小于全开流量的80%)时,阀门被关闭的电信号即可传到消防控制中心。这样供水管路就可得到及时监控,使阀门保持常开状态,确保供水安全。在其它的管道系统中,也能监控阀门的工作状态。
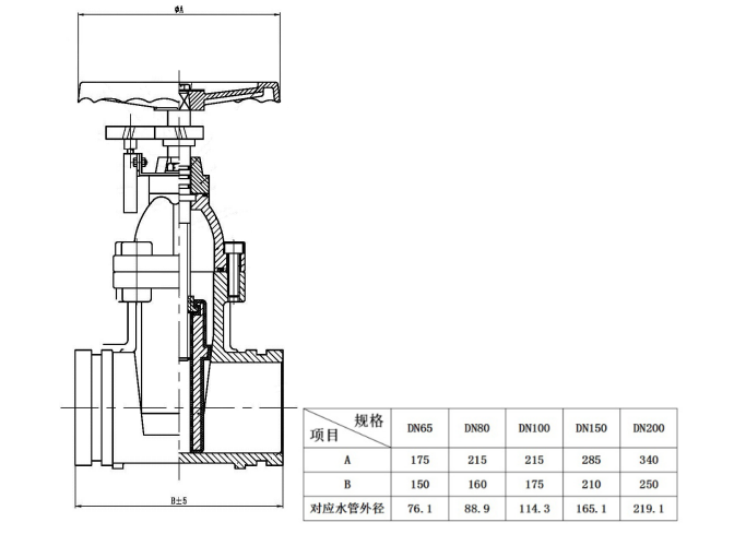
2.产品参数
消防信号闸阀,为立柱式常开信号装置。在一定开度时可输出一远程电信号,防止阀门被误关闭。详细使用方法见后。



法兰式和沟槽式外形尺寸
3.使用注意事项
手轮、手柄及传动机构均不允许作起吊用,并严禁碰撞。
双闸板闸阀应垂直安装(即阀杆处于垂直位置 , 手轮在顶部 )。
带有旁通阀的闸阀在开启前应先打开旁通阀(以平衡进出口的压差及减小开启力 )。
如果阀门经常开关使用 , 每月至少润滑一次。
4.消防信号闸阀安装说明
1、 小心打开包装,并注意阀门上的标识和铭牌内容是否与使用要求相符。
2、 拆除阀门通道两端的端盖,去除端面防护涂层。用压缩空气清洁阀门内部,确保没有任何异物如木屑、塑料等包装材料附在阀门内部、阀座或连接端面处。
3、 通过阀门端部通道检查阀门内部的清洁情况﹑看是否有杂物和有害物质的侵蚀。
4、 检查阀门的流向标记,以确保阀门正确的安装方向。(适用于低温闸阀)
5、确保阀门在管线上能正确安装并拥有可靠的支撑,如有必要,在管线上设置膨胀与弯曲补偿结构,避免过度的管道应力对阀门造成损害。
6、阀门应尽量安装在水平管道上,阀杆朝上。
7、安装时,闸板应处于关闭位置,以确保安装进程中不致损坏阀座/闸板密封面。
5.免责声明
安装本产品前须进行管道冲洗,管道冲洗后应符合规范要求,否则导致我司产品故障或损坏,以及系统故障,我方概不负责。
产品推荐

