1. 产品特点:
无机纤维纺织物经特殊处理后制作成帘面,采用手动收卷、电动释放或手动释放的方式进行控制,并可与报警主机进行联动,适用于各类工业与民用建筑中需进行防烟分隔的部位及各种需采用气体灭火时进行密封而又不便于采用防火卷帘等其他封闭方式的场合。

2.技术性能
2.1耐火温度>600℃。帘面由多种耐高温非金属材料经特殊处理组合而成。质地柔韧,抗拉强度大,具有金属卷帘无法相比的耐高温、耐腐蚀性能。
2.2 体积小:帘面厚度薄,占用空间小,可以适用不同的建筑物需求。
2.3 重量轻:帘面重约3.5kg/m2,是钢质防火卷帘重量的1/10,建筑物无须作预埋处理
2.4 启动灵活,噪音小且无需水幕保护,大幅度降低了工程的造价。
2.5 颜色具有多样性,可以和内装修进行搭配,给人以舒适的感觉。
2.6 有二种操作方式:火灾消防中心联动控制(由消防控制中心发出控制信号),手动控制(由按钮控制盒实现操作)。
2.7 控制方式为电动(DC24V/0.5A)和手动控制下滑,手动收卷复位。
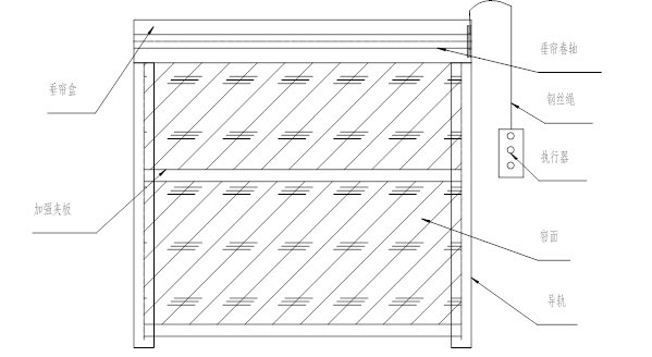
3. 结构特征与安装方式
3.1 结构:由帘面、卷轴、支座、执行器、导轨等组成,卷轴两端由特殊设计的机构支承,能补偿墙面的平面误差,使卷轴在任何情况下均能转动自如。
3.2 安装方式:按导轨在建筑中的位置也分为中封式及侧封式两种。
4. 维护管理
4.1 轨道内严禁有其他物品接触帘面。
4.2 初次使用宜按安装要求检查是否完善并进行试运行。如有异常现象应停止使用。
4.3 日常运行启动开始时应先做手动释放,在判明运行正常后在通电动作。
4.4 手摇机构,只作为垂帘复位时使用,平时应将内六角扳手放于执行器的附近。
4.5 垂壁平时必须处于正常开启状态,遇火灾时,方可发挥阻火作用。因此,该垂帘应有专人负责检查管理。对平时很少用的垂帘应每月检查运行一次,检查各个支架上的紧固螺丝是否紧固,机械传动是否正常、电器控制是否灵敏,若发现问题或故障,必须及时排除。
4.6 垂帘的帘面严禁用尖硬的硬物穿刺和击打等损坏帘面的行为发生。
4.7 保持电器盒清洁,防止盒内进水、进油和其他污物,以防各元件松脱、老化短路。







